
简设雅居,惬意无限
栖居当下,漫游其中
简洁、优雅、多元的设计语汇
打造一个轻奢至尚的现代意境
生活从这里开始……
————项目信息————
坐标:中国·上海
>>项目户型:双层别墅
>>项目面积:340+㎡
>>项目风格:现代轻奢风格

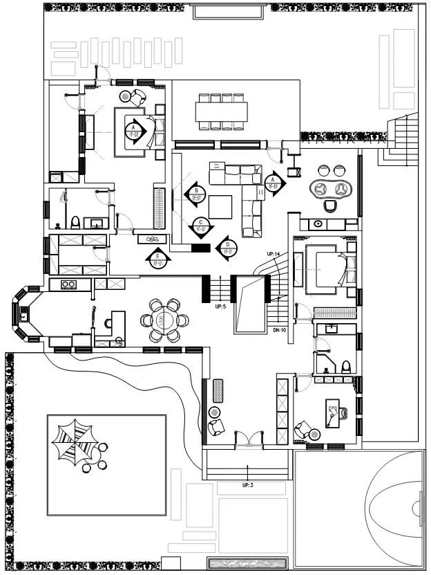
△一楼平面图

△二楼平面图
卡芬达家居设计师结合业主需求和喜好,充分运用自然光线,以白色为空间主色调,利用朴实的硬装和时尚的软装,碰撞出别具一格的轻奢美学。各个功能空间既独立又贯通,个性鲜明,舒适大气,还原业主不同的生活场景。
庭院
COURTYARD
搭配有序,放松身心

一楼庭院点缀着各类绿植
高低不一,搭配有序
营造宜人的视觉意境
开阔视野,放松身心
客厅
LIVING ROOM
突破空间限制,延伸出自然与纯粹



客厅调性和谐一致
杏子灰混油饰面板
营造纯净无暇之感
宝蓝色泡泡沙发跳色出彩
使空间焕发活力
自成一道艺术风景

当现代时尚与趣味相遇
定制超高木饰面配合空间层高
入目纯净感带来视觉冲击
通透的采光设计
为空间引入自然光线
让室内犹如置身温暖之中
棋牌室
CHESS AND CARD ROOM
休闲惬意,低调舒适


客厅一隅加设棋牌室
简洁、舒适、精致
定制原木柜体增设收纳空间
契合家居格调
卧室
BEDROOM
静享柔软慢时光


超大主卧空间
集卧室、衣帽间、卫生间为一体
独立又相互连接
背景墙采用可可蛋奶色混油护墙板
与整体家居色调保持一致
musk床选用奶咖色
清浅温柔,温馨舒适


整齐高雅的衣帽区、安静私密的卫浴间
直率地达成私密空间丰富性与个性化的统一
将美好生活具象化表达
舒适与品质并存,平静与精致相伴
书房
STUDY
巧妙细节,畅游书海


一二楼各设书房空间
白色主调、深色柜体使空间富有层次感
巧妙变化的柜门形态和丰富的细节设计
更增添整个书房的精致感
超长一型悬浮书桌
满足多人同时办公阅读
畅游书海,心浸书香
其他
OTHER
尽显设计,享受生活质量

多功能房配备多种运动器械
满足全家人互动及放松


胡桃木饰面的过道
灰白大理石的楼梯
简约而富有艺术感
恰如其分地体现了现代轻奢的风范
追光溯源,拾阶而上
又是一方天地
【END】
明确的分区,干净的线条,
描绘家的非凡质感,
回归平静纯粹的自然空间。
卡芬达家居,与您共享现代轻奢生活美学。
上一篇:卡芬达家居丨遇见生活的格调
下一篇:卡芬达家居丨回归原点,爱与舒适